西宮市堤町
■全8区画の堤町プロジェクト分譲開始
■自由設計でかなえる理想の住まい
■駐車2台のプランあります
■長期優良住宅(耐震等級3)、ZEH仕様、オール電化住宅などにも対応可能です
5,060万円~(消費税込)
| お問い合わせ番号 | 00008066 |
|---|
| 所在地 | 兵庫県西宮市堤町 |
|---|---|
| 交通 | 阪急今津線「門戸厄神」駅徒歩22分 阪急今津線「西宮北口」駅徒歩27分 |
| 土地面積 | 91.26m²(約27.60坪)~ |
| 建延面積 | 97m² |
| 建物構造 | 木造2階建 |
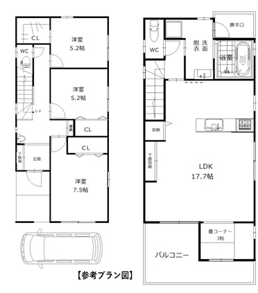
| 間取り | 4LDK |
| 私道負担 | 別途有 |
| 道路 | 東側私道約4.5m |
| 築年月 | 契約後4ヶ月 |
| 用途地域 | 第一種中高層住居専用地域 |
| 通学区(小学校) | 樋ノ口小学校 |
| 通学区(中学校) | 甲武中学校 |
| 備考 | ※画像はすべて施工例です |





























